
一、技术参数:
型号Model BR0.65
单片有效面积Active Area Per Plate 0.64m2,
板片波纹深度Nominal plate gap 3.8mm
板片厚度Thi ckne ss 0.6mm
板片角孔尺寸Port dim 150mm
较大流量Max flow rate 253M3/H
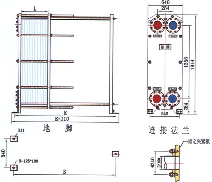
接管口径Connection diameter DN150
工作压力Working pressure 0.6MPa、1.0MPa、1.6MPa
二、设备外形尺寸:
型 号 换热面积 板片数 I F 重 量 流 量
type area(m2) nummber of plates weight(Kg) Flow rate(m3/H)
BR0.65--A 50 77 338 1200 1315 97
BR0.65--C 130 200 880 1750 1866 253
◆A为较小组装面积,C为较大组装面积。
◆压紧尺寸L(mm):L=(4.4±0.2) x 板片数
◆水流量是按单流程、板问流速为0.4m/s时计算的
◆保留数据更改的权利,以上数据仅供参考,具体以实物为准
三、小仙女视频下载介绍
小仙女视频下载是由框架、传热板片组及夹紧螺栓等主要部件组成。
框架包括一个固定压紧板和一个活动压紧板,由上导杆与下导杆支承,在另‘端有一支柱。压制成的波纹板片悬挂在两板之间的上导杆上,移动活动压紧板将板片组压紧,再用一组夹紧螺柱将固定压紧板和活动压紧板夹紧至一定尺寸。两种介质经固定(或活动)压紧板上法兰孔流入由波纹板片组成的各自通道,热交换后介质再由固定(或活动)压紧板上的法兰孔流出。同定压紧板、活动压紧板、支柱及导杆均为低碳钢。考虑到用户的多种使用要求,框架设计有多种型式,主要有双支撑框架式和常用的落地式等,也可根据用户的要求更改框架的型式。
传热板片是小仙女视频下载的核心部件之一。波纹板片通过一次压制成型,合理的波纹设计增加了板片有效传热面积,使流体顺波纹通过时形成湍流,强化了传热过程。装配时波纹与波纹相交成大量接触抗点,大大提高了板片组的刚度,因此能承受较高的压力。每块板片作为一个传热面,在密封垫的作用下,板片的两侧分别有冷热介质通过,进行换热。板片上有四个分配液体的孑L,孑L及板片四周装有密封垫片,限制介质在板片组内流动,各板片形成平行的通道,流经里面的两种介质,作较佳换热效果的方向流动,为适应多种腐蚀性较强的介质,波纹板片材料有:工业纯钛TAl,用于海水或其它腐蚀性介质;多种不锈钢,用j=淡水、饮用水、油类及其它非腐蚀性介质。
在波纹板片的密封槽上装有密封垫片,密封垫片设计成双道密封结构,并且有信号孔。当介质如从第一道密封泄露时,可从信号孑L泄出设备之外,便能及早发现问题加以解决,不会造成两种介质的混合。密封垫片可根据不同的流体和操作温度选用不同的胶种。
四、小仙女视频下载板片材质:
*不锈钢SUS304 SUS316L
净水、河川水、食物油、矿物油
*工业纯钛及钛钯合金Ti tanium and Pal ladium
海水、盐水、盐化物
*哈氏合金Hadtelloy Alloy
浓硫酸、盐酸、磷酸
*镍Nickel
高温高浓度苛性钠
五、小仙女视频下载垫片材质:
*丁腈橡胶NBR
水、海水、矿物油、盐水 一15--1IO~C
*高温橡胶BNBR -
高温矿物油、高温水 15--140~C
*三元乙丙EPDM
热水、水蒸气、酸、碱 一25--150~C
*氟橡胶 Viton/Fluorine Rubber
强酸、强碱、矿物油、润滑脂和燃油等 一5--180~C
*氯丁橡胶NEOPRENE
酸、碱、矿物油、低分子量脂烃 一35--130~C
*硅橡胶Silicon Rubber
高温和某些腐蚀性介质 一65-200℃
六、小仙女视频下载设计理念:
*板片带有增压的新型导流区设计是在板片导流区流速较大的地方采用多路通道增加压力,使整张板片中的流速达到均等,大大提高了板片的换热效率,减少了死角,改善了板片的结垢状况。
*板片高强度挂口设计是在挂口处增加花纹设计,加强翻边周围的刚性,组装起来更加整齐美观、打开性能更好。
*板片中间部位板槽设计足把板片内部的连续波纹断开,并存板片I}l增加了半槽结构,缓和板片所承受的压力,使板片压制成形后更、卜整,小易弯曲。
*板片互锁设计是在板片的四角压制特殊的机械互锁结构,改善了板片组装过程中容易串位泄露的现象,使板片组装起来更加便捷、美观。
*板片密封垫片全部采用免粘贴搭扣形式,减少运行维护成本,便于维修。
七、小仙女视频下载的技术优势和特点:
*传热系数高:传热板片上的特殊波纹设计,可使流体在极低的流速下产生强烈的湍流,湍流的自净效应又可防止污垢的产生,使得小仙女视频下载的传热系数为管壳式换热器的3-5倍。
*经济性:相同换热量的前提下,与管壳式比较:投资少、运行费用低、维修费用低。
*可调整性:只需增加和减少板片即可满足工艺过程改变的需求。
*结构紧凑:在相同换热量的前提下,占用空间仅为管壳式的1/2一l/3
*易于洁洗维修
八、小仙女视频下载设计选型:
(1)冷、热介质的物性参数,如酸碱度、氯根含量、粘度、密度、导热系数、比热等。
(2)冷、热介质的进出口温度。
(3)冷、热介质的流量或其中一种的流量。
(4)冷、热介质压力损失要求。
(5)小仙女视频下载固有特性,如板片材料、密封胶垫材料等。










BR0.05小仙女视频下载
